Proyectos Estructurales
Construcciones y remodelaciones destacadas


Edificio Arce - Cartagena
Edificio de uso residencial, 4 niveles el primer piso es de uso comercial. Sistema de porticos en concreto resistente a momentos. Sistema de cimentacion superficial con zapatas corridas y aisladas
Se logró una optimizacion en el peso de la placa para disminuir el costo en volumenes de concreto


Casa Vergel - Bogotá
Reforzamiento estructural ded vivienda de 4 pisos ubicada al sur de Bogotá. El reforzamiento se realizo por medio de encamizados de columnas y vigas para aumentar la rigidez del sistema de generar la resistencia necesaria para soportas la fuerzas sismicas de diseño




Estructura de grupo de uso IV, con luces de mas de 9m las cuales se solventaron con postensado para reducir vibraciones y mantener el estado ultimo de servicio de acuerdo a la normativa. Sistema de combinado de muros de concreto y porticos de concreto. 1 sotano, 5 niveles mas terrraza
Hospital San Rafael - Yolombo Antioquia




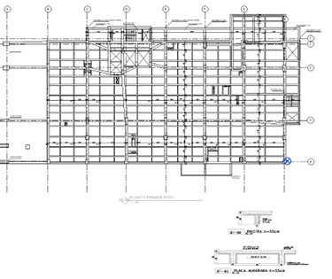
Centro comercial El Dorito - Cartagena




Centro comercial con locales de doble altura. Cuenta con una cubierta metalica en cerchas en celosia. Las cerchas salvan luces de 14m. la altura de las cerchas van de los 1 a 2m de altura.
Diseños de Arquitectura e Interiorismo








OTROS PROYECTOS
Casa Chinauta - Maurici Auli
Casa Rivera 1 - Sebastian Cerquera
Casa Rivera 2 - Sebastian Cerquera
Ingeus Group transformó nuestra idea en un espacio moderno y funcional, superando expectativas.
Ana M.
Su atención al detalle y uso de tecnología digital hizo que la remodelación fuera impecable.
Luis R.
